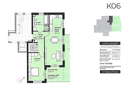
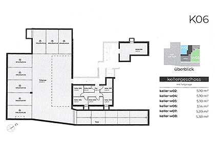
Bilder & Pläne
Mehrfamilienhaus mit 8 Wohnungen
Kathreinweg 6, 81827 München-Trudering

>>> Exposé zum Online-Blättern <<<
>>> Exposé-Download <<<